 |
Browse Remodeling Awards
•
Browse Award-Winning Remodelers
|
 |
|

Our
Chrysalis Awards
for Remodeling Excellence:
2015 Detached Outbuilding
2013 Kitchen Remodel
under $50,000
2013 Kitchen Remodel
$75,000 - $100,000
2012 Kitchen Remodel
under $50,000
2012 Best Addition
$100,000 - $250,000
2011
Addition Under $100K
2011 Residential Universal Design
 |
Renewal Construction Remodelers of
Puyallup, Washington

Industry
Associations:
Professional Designation: |
George Eide
14110 Canyon Rd. E.
Puyallup, WA 98373
Phone: 253-682-1990
Website:
www.remodelingsouthsound.com
|
|

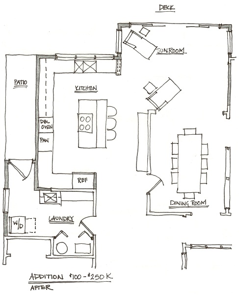
2012
Addition $100,000 - $250,000
Click on any picture for
slideshow
Over the years the
homeowners of this 1968 ranch home have remodeled to suit their
lifestyle. Now the time had come for the kitchen to be remodeled and to
add a spacious sunroom. We used a covered patio off the side of the
kitchen and extended to roof line down on the rear of the home to
increase the size of the kitchen space. The challenge was removing the
rear exterior wall. A large gluelam beam was installed to carry the
existing roof joists and the new roof joists for the kitchen addition.
The new layout allows for plenty of space for the homeowners and for
entertaining family and guests. The exterior wall is now lined with
bamboo cabinets, giving the new kitchen a refreshing late 1960’s design.
The rear entry door was moved to the utility room allowing space to turn
the cabinets and move the refrigerator to a new location. The addition
of new decks to the backyard, along with the landscaping including coy
ponds and stone hardscaping by the homeowners, make the backyard a
tranquil place for the homeowners to retreat.
|